TASARI MİMARLIK

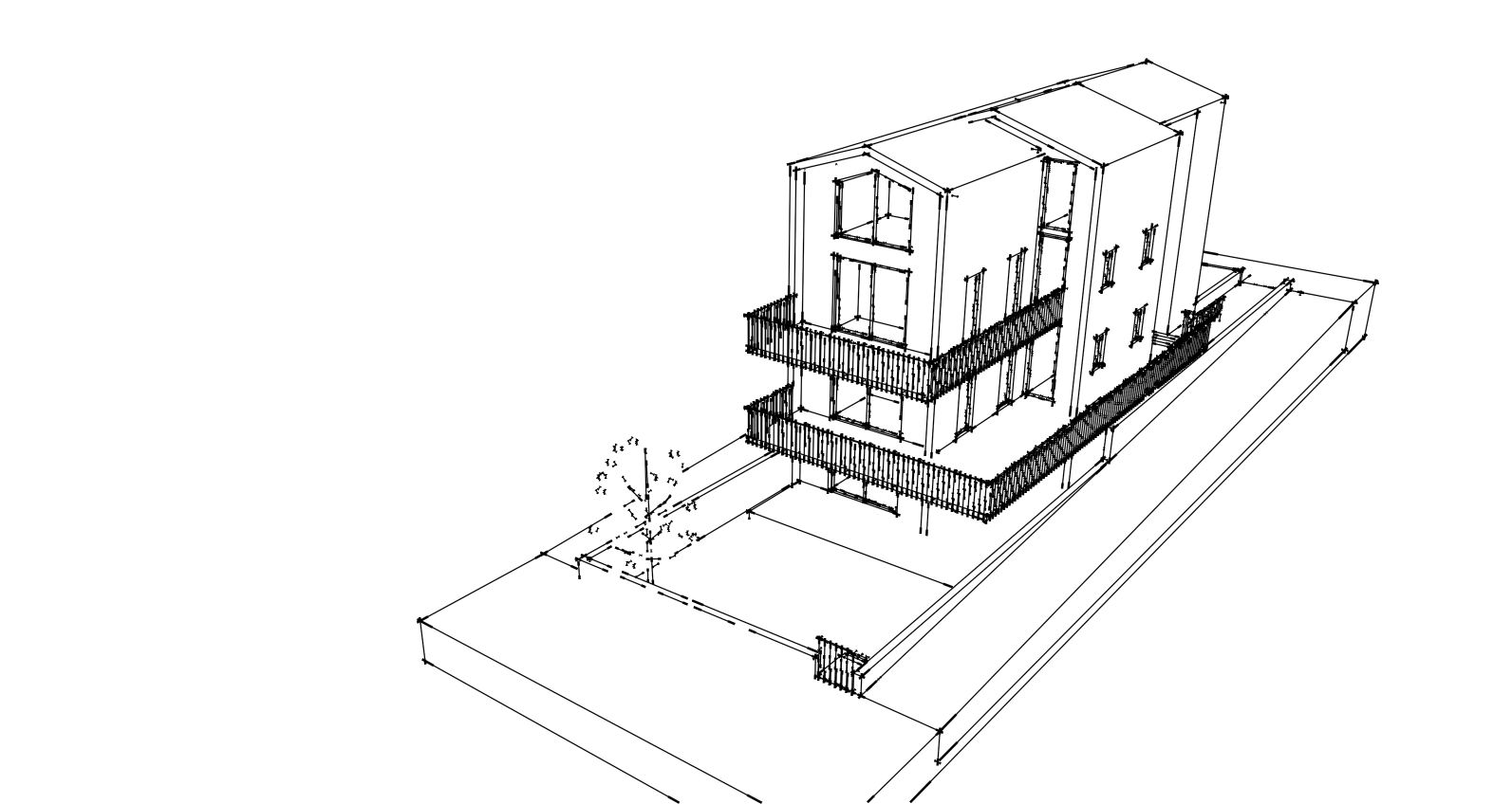
Saygın Evi

PROJE BİLGİSİ
PROJE ADI: Saygın Evi
KONSEPT: Konut
KONUM: İzmir / Urla / Çeşmealtı
TARİH: 2023

Saygın Evi

Tasarı Mimarlık, mimari, master planlama, kentsel tasarım, iç mimarlık, mekân planlama ve programlama alanlarında hizmet veren tam kapsamlı bir tasarım ofisidir.
Yurt genelinde tamamladığımız projeler, övgüyle karşılanan ve ödüller kazanmış çalışmalarla dolu güçlü bir portföyü temsil etmektedir.

PROJE KONSEPTİ

Tasarım sürecimizin merkezinde insan vardır; sahip olduğumuz her uzmanlığı bu amaç doğrultusunda kullanırız.
Uygulamalarımız toplulukları birbirine bağlar ve mekâna, çevreye karşı sorumluluğu temel alır.

  • Tasarı Mimarlık’taki yetenek hem geniş bir alana yayılmış hem de derin bir uzmanlıkla şekillenmiştir. Farklı pazarlarda ve coğrafyalarda etkili bir şekilde faaliyet göstermekteyiz.
  • Ekibimiz, sektörün en yetkin ve saygın profesyonellerinden oluşmaktadır.
  • En özel hizmeti sunacak şekilde organize edilmiş ve sürekli gelişen bir yapıya sahibiz.

Tasarı Mimarlık, mimari, master planlama, kentsel tasarım, iç mimarlık, mekân planlama ve programlama hizmetleri sunan tam kapsamlı bir tasarım ofisidir.
Yurt genelinde hayata geçirdiğimiz projeler; beğeni toplayan, ödül kazanan ve müşterilerimizin beklentilerini aşan çalışmalardan oluşan güçlü bir portföyü temsil etmektedir.

Dünyanın dört bir yanında unutulmaz mekânlar yaratmak, tek bir tasarım aracıyla mümkün değildir.
İnsanları bir araya getirme konusundaki uzmanlığımız hem geniş kapsamlı hem de derinliklidir.
Bu yetkinlik, her biri büyük resme ve sürdürülebilir büyümeye katkı sağlayan farklı disiplinlerden beslenmektedir.

Portföyümüzde 3.000’den fazla proje yer alıyor; ancak bizim için en önemli olan, bu mekânları deneyimleyen milyonlarca insandır.

Tasarı Mimarlık, mimari alanında kapsamlı hizmetler sunan tam donanımlı bir tasarım ofisidir.

Contact Info
Office Address
UP
Select the fields to be shown. Others will be hidden. Drag and drop to rearrange the order.
  • Image
  • SKU
  • Rating
  • Price
  • Stock
  • Availability
  • Add to cart
  • Description
  • Content
  • Weight
  • Dimensions
  • Additional information
Click outside to hide the comparison bar
Compare